• Altiva Real Estate Sl
  • Cabo de la Nao
  • 28500 Arganda del Rey (Madrid)
  • 618855399
  • 618855399
  • Contacto
Búsqueda Avanzada
Nave en Alcalá de Henares, venta

Nave en Alcalá de Henares, venta

Nº de referencia: NAV0005

Precio: 950.000€

  • Sup. Construida 950 m²
  • Habitaciones 5

Descripción

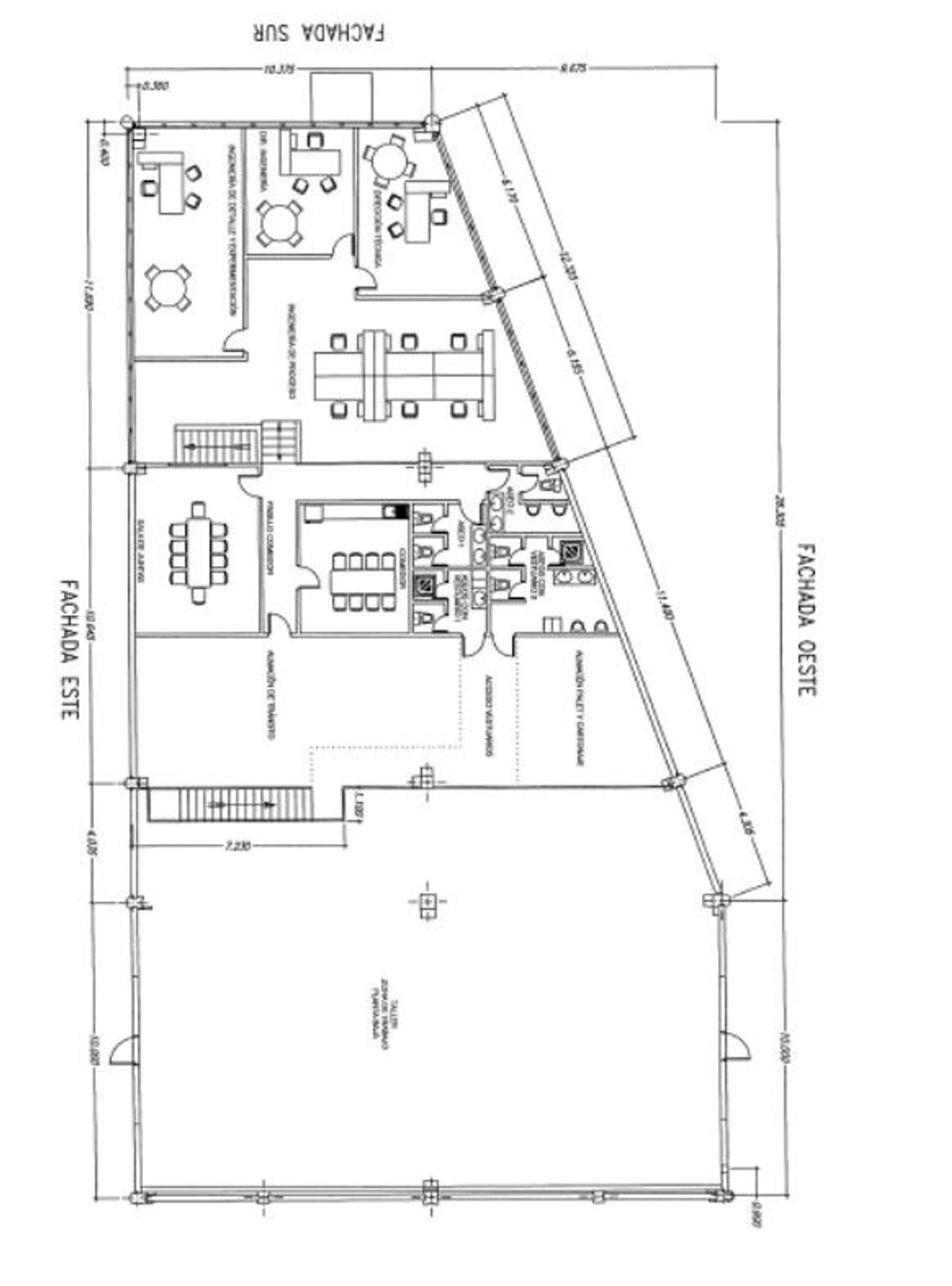
NAVE INDUSTRIAL CON PUENTE GRÚA Y OFICINA REPRESENTATIVA de 945 m2 construidos. La propiedad está adosada y cuenta con un patio perimetral solado en hormigón, vallado en tres de sus caras. La zona de trabajo dispone de un PUENTE GRÚA de 6,30 toneladas y una dimensión de 607 metros, con una altura máxima de 9,10 m y mínima de 4,90, edificada con estructura y cerramientos prefabricados de hormigón y cubierta de panel sándwich. El acceso es mediante portón TIR, a pie de calle, con salida a patio trasero, lo que permite la circulación de vehículos. El alumbrado es led, con fuerza trifásica y cuadros secundarios, sistema de extinción de incendios y alarma.

La oficina, semi-amueblada, es muy luminosa y representativa, con una superficie de 336 metros construidos, en dos plantas. Se accede de forma independiente contando con accesos interiores a la zona de trabajo. Tiene distintas dependencias, office montado, con fregadero, vestuarios, despachos, baños, amplia recepción, y se encuentra acondicionada con falso techo, suelo técnico, climatización frío calor.

Te invitamos a conocer el inmueble en persona. Llámanos y agenda tu visita.

Certificación energética: C C

Mapa

Detalle

  • Tipo de propiedad: Nave
  • Tipo de operación: Venta
  • Provincia: Madrid
  • Población: Alcalá de Henares
  • Habitaciones: 5
  • Sup. Construida: 950 m²
  • Tipo de obra: Segunda mano
  • Certificación energética (consumo): C
  • Certificación energética (emisiones): C

Características

  • Exterior:
  • Año Construcción: 2004
  • Trastero:
  • Puerta blindada:
  • Aire acondicionado:
  • Salida de humos:

Descripción

NAVE INDUSTRIAL CON PUENTE GRÚA Y OFICINA REPRESENTATIVA de 945 m2 construidos. La propiedad está adosada y cuenta con un patio perimetral solado en hormigón, vallado en tres de sus caras. La zona de trabajo dispone de un PUENTE GRÚA de 6,30 toneladas y una dimensión de 607 metros, con una altura máxima de 9,10 m y mínima de 4,90, edificada con estructura y cerramientos prefabricados de hormigón y cubierta de panel sándwich. El acceso es mediante portón TIR, a pie de calle, con salida a patio trasero, lo que permite la circulación de vehículos. El alumbrado es led, con fuerza trifásica y cuadros secundarios, sistema de extinción de incendios y alarma.

La oficina, semi-amueblada, es muy luminosa y representativa, con una superficie de 336 metros construidos, en dos plantas. Se accede de forma independiente contando con accesos interiores a la zona de trabajo. Tiene distintas dependencias, office montado, con fregadero, vestuarios, despachos, baños, amplia recepción, y se encuentra acondicionada con falso techo, suelo técnico, climatización frío calor.

Te invitamos a conocer el inmueble en persona. Llámanos y agenda tu visita.

Más información

Si desea más información de este inmueble, complete los datos a continuación.

También puede llamarnos al:

618855399

más

Certificación energética

Certificación energética: C C
  • Altiva Real Estate Sl
  • Cabo de la Nao
  • 28500 Arganda del Rey (Madrid)
  • 618855399
  • 618855399
  • más
Cabo de la Nao
28500
Arganda del Rey (Madrid)
  • Altiva Real Estate Sl
  • Cabo de la Nao
  • 28500 Arganda del Rey (Madrid)
  • 618855399
  • 618855399

© Altiva Real Estate Sl 2026

Avisos legales